Toggle navigation
Home
Design Works
News
Compasso d'Oro
Sport - Performance and Innovation
切换至中文
Login
Register
Login Form
register
forget?
unknown user name or bad password!
Close
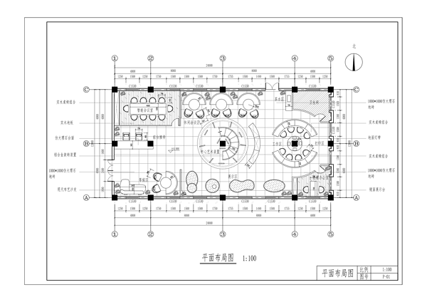
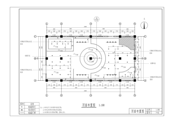
《自然共生未来都市办公空间设计》
王智赫
share:
Comment
0
# 6149
《自然共生未来都市办公空间设计》
culture creativity
Category
impression drawing
stage
2025-07-24
uploaded
Summary
作者:王智赫、胡冰
指导老师:杨帆
本设计以“未来城市与自然共生”为核心,将树木生长化为时空符号,打造垂直生态办公系统。中心装置数字化重构树木形态,成动态有机枢纽,象征自然与科技交融。空间分两层,左挑空增强层次与通透。
Other Information
384
0
0
0