来源:青年建筑(i80arch)
提起Department of Architecture,也许很多人会感到陌生,不过最近他们的一个项目却火遍泰国,那就是清迈的little shelter酒店。
这家酒店位于泰国清迈,是该团队用超低预算打造的半透明酒店。酒店采用当地的传统木瓦做为元素,这种材料系统在泰国已经经历了数百年的发展。小尺寸的木瓦单元像鱼鳞般排列成一块密不透水的平面。建筑师试图将新材料融入系统,创造一个富有现代感、同时又根植于传统的建筑表面。
入口的立面顶部采用实木瓦片,底部则使用了聚碳酸酯(一种树脂材料),瓦片从顶部洒落与底部的现代材料连接,不仅能够通过光线营造不一样的氛围,还使得整个建筑兼具传统性与现代感。
屋顶参考了当地的传统建筑,使用了带有斜屋顶的木质结构来向当地传统建筑致敬。在墙壁的立面上,建筑师将聚碳酸酯板切割成与木瓦相同大小的方块通过透明螺钉搭接起来,构建了一个半透明的立面。到了晚上,光线便会从建筑内部透出。

建筑内部的设计,也与外部的简洁形成呼应。公共区域使用白色元素,顶部装饰着Boh-Srang伞装置艺术品,充分凸显了当地独特造型的手工艺。



客房内部的天花板装饰着清迈的重要地点,墙壁则使用镜面覆盖,给整个客房带来超现实的无边界感。

酒店一共有14间客房各自拥有不同的图像,营造出不同的室内氛围。
首层平面图
立面图
Department of Architecture非常善于新材料、挖掘材料特性,之前设计的泰国创意设计中心的室内设计中就大量使用了透明材料,项目获得了普遍认可。
Department of Architecture设计的泰国创意设计中心
这是一家泰国的建筑师团队,团队的创始人Amata Luphaiboon与Twitee Vajrabhaya Teparkum都在美国著名学府的建筑系毕业。
Amata获得朱拉隆功大学颁发的一等荣誉建筑学士学位和金奖,他在国外深造并获得了华盛顿大学和哈佛大学的两个硕士学位。毕业后,他加入Metric,担任多年的首席架构师。
Twitee获得弗吉尼亚理工大学建筑学学士学位,并获得普林斯顿大学建筑硕士学位。她曾在芝加哥和纽约工作了一段时间,然后回到泰国加入Metric。
在Metric,两人曾共同合作完成了Sila Evason的苏梅岛Hideaway度假村。正是因为这个度假村的大火,让他们迸发了共同创立工作室的想法,因此在2004年,他们共同创立了自己的工作室“Department of Architecture”, Amata目前是该公司的负责人。他们侧重于在建筑学中发展思想,研究社会、文化和物理环境,与各个领域的艺术家合作,以及对替代材料的利用进行探索。
两人在Metric公司期间合作的设计
他们的工作室位于Sathorn区,虽然这里的街区非常繁华,但是他们的工作室却融合了宁静与有趣的元素,将这里与外界的纷扰分离开。工作室的设计理念是“设计的可能性”,这也是工作室一直以来的追求。
Amata Luphaiboon
从早期的项目开始,他们多年的经验使得他们所打造的建筑类型和功能更加具备多样化,并且也更加注重思想的新鲜感和对细节的关注。
Twitee Vajrabhaya Teparkum
除此之外,这家事务所也是一个坚持可持续发展的公司,他们希望自己的设计是“有意义”的,而这个“有意义”指的就是对于环境、气候和可用资源的设计,而他们在泰国北部所建设的学校正体现了这一说法。
Pong Phrae Wittaya学校
Pong Phrae Wittaya学校所采用的是一个抗震设计理念,克服了时间与预算的限制,他们将建筑的结构外露,使得乡村教室变得简单却有趣。
下面我们再通过两个案例,来进一步了解Department of Architecture建筑师团队的理念吧。当你了解了这家事务所的设计理念和项目之后,就一定会感叹他们的理念与创意。
The Commons城市垂直公共空间
The Commons位于曼谷的市中心Thonglor区(有钱人的聚集地),建筑面积5000平,造价460万欧元,旨在解决曼谷城市密度高,居民希望拥有户外生活空间的愿望。项目希望有效地处理热带高温户外活动空间,尝试创造一个活跃而舒适的室外空间。
这个城市垂直公共空间的主体是一个纵向的露天建筑,底层为景观区,具有休息平台、座椅、绿色植被等等。
这片区域位于上层结构的底部,不会被阳光和雨水入侵,非常适合人们在这里进行户外活动。整个建筑的木地板也被建筑师使用木塑复合材料进行代替,不仅更加容易维护,同时也非常耐用。
三四层则围绕中庭设置了室外空间,并在垂直方向和水平方向上贯穿整个建筑,使得这里可以形成自然通风。同时建筑师在天窗下的顶棚内设置了工业风扇,可以进行排风和送风,以保持这里的空气流通。
为了将顾客带到建筑物高层,建筑师采用了一系列的台阶和平台,方便顾客以散步的方式,悠闲地走到建筑物的高层。
该建筑在高层为顾客打造了一系列的商店,并在上层立面安装了薄薄的钢网,这些钢网消除了立面上不同商店之间的差异,创造了一个干净、统一的建筑外观。
建筑外墙的钢网,不仅能够加强透视和透风性,还能够增加结构的稳定性,并且给室内外提供了视觉交流。
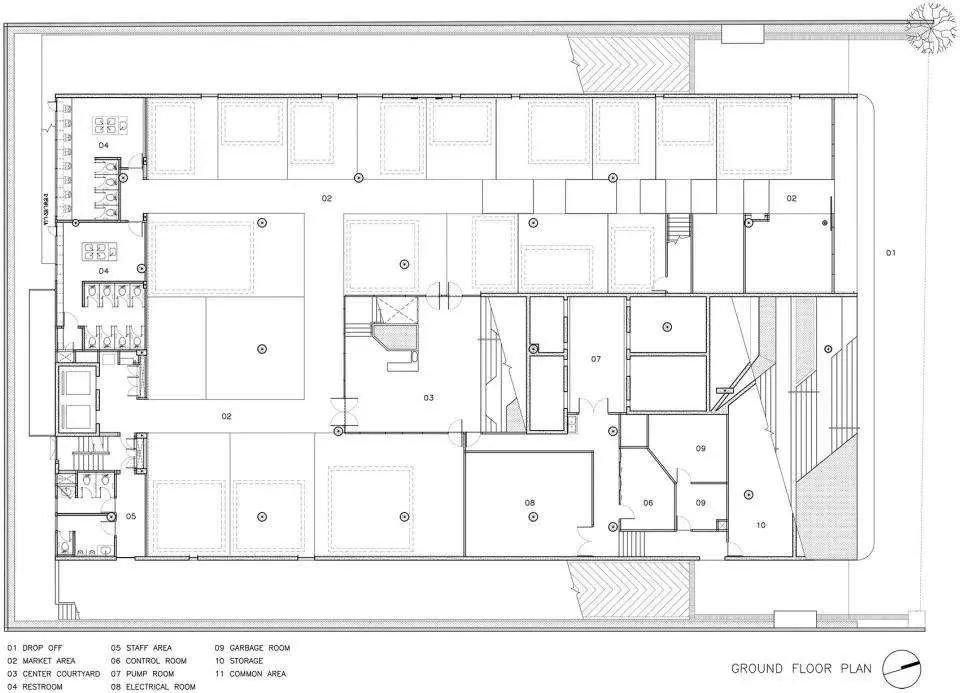
底层平面图
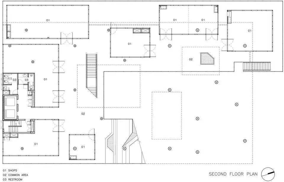
二层平面图
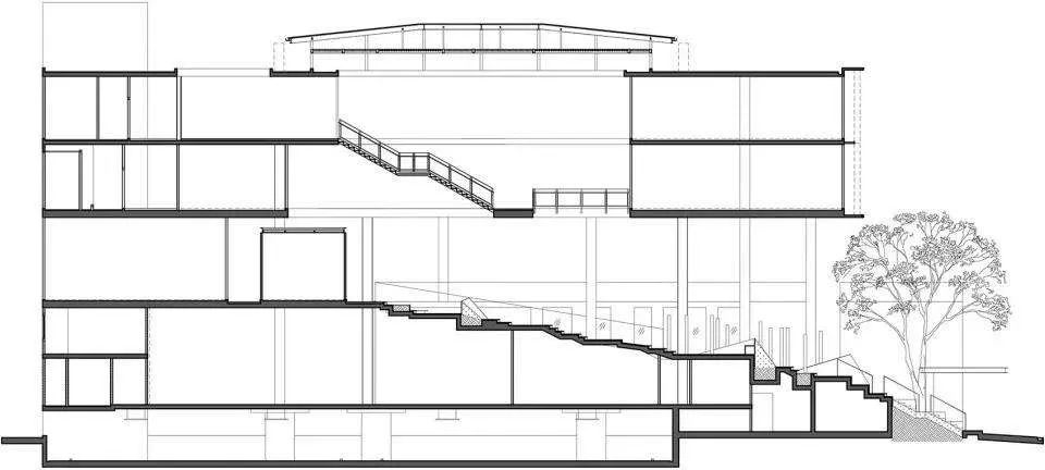
剖面图
薄雾温泉酒店
这家酒店位于河南许昌,也是该工作室在中国的首个项目。自然环境使得这里的地下水在加热时会释放雾气,给顾客带去被雾气围绕的神秘感。
酒店外墙采用了色彩斑斓的彩釉玻璃,不仅为冬日素雅的温泉带去色彩,还可以在室内通过这些有色玻璃,感受“着色”的冬日景观。
室内设计的灵感也来自于温泉蒸汽那神秘的美感,酒店大堂有着三维的白色水晶,搭配黑色皮质座椅和水滴元素,将整个室内衬托得极为大气。
相信看过这几个案例,你对于Department of Architecture建筑师团队有了更加深入的了解,有趣的设计、超低的预算和可持续发展的理念,都是他们能够立足于建筑界的根本,也同样成为了他们被人们所喜爱的原因。
点击阅读原文或者下方小程序
在线购买造么工作室原创好物
推荐阅读
点击下方图片即可阅读
喜欢这篇文章请点击“在看” | 把本号分享给你的朋友 | 欢迎留言投稿交流 | 微博@造么工作室
文章内容为本站编辑转载,转载目的在于传递更多信息,并不代表本网赞同其观点和对其真实性负责。
如涉及作品内容、版权和其它问题,请在30日内与本网联系,我们将在第一时间删除内容!
联系邮箱:info@cidip.cn