本文经授权转载自:堺 Atelier(ID:jie_lab)
标星ZaomeDesign订阅号,不错过新鲜内容对于建筑师,学生时代最重要的大概就是...
毕业设计…
彼时彼刻,那真是,
前赴后继,夜以继日, 日夜兼程....
成品留名千古,败品…黑历史咯...
前有Koolhaas的Exodus,
后有Zaha Hadid的Malevich’s Tektonik...
这些如今在网络纸媒漫天飞如雷贯耳的毕业设计,
终究成为菁菁学子们的心心所向。
//

Exodus, Rem Koolhaas, 1972

Malevich’s Tektonik., Zaha Hadid, 1976
日本,如此盛产普利兹克大师的一片热土,
自然少不了一个个年少时浓烈而又张扬的毕业设计...
然而比不起类似Koolhaas, Zaha这种,在各领域兜兜转转后才迈入建筑圈时的或先锋或尖锐,布扎体系下日本建筑教育在最终毕业成品上趋于稳重,而这些毕设与大师们自己日后的实践形成的,或一脉相承的衔接,或风格突变的转折,也是颇为玩味。
//

丹下健三,这个被誉为日本现代主义之父的建筑师,几乎被视作战后日本建筑的起点。
曾于二战前夕在上海就读过小学的丹下,回到日本后数年,因憧憬Le Corbusier,应考当时东京帝国大学的建筑学科,然而历经两度落榜,才终得如愿入学。而就在这不久前,德国表现主义建筑师Bruno Taut来访京都的桂离宫,那句
“桂离宫乃是东方的帕特农神庙”
让日本正式从自己文化根基中求得了现代主义的合理依据,于是在丹下就学前,日本便已舍弃了“帝冠样式”,结束了日本主义与现代主义之争。在当时Corbusier的弟子前川国男与坂仓准三的带领下完成了真正意义上早期现代主义的建立。丹下健三所处的时代,正是在时谓“大日本帝国”名号下国家机器驱动的现代主义的最高潮。

CHATEAU D'ART, 丹下健三, 1938
CHATEAU D'ART 藝術の館 / 艺术之馆
描述:
位处日比谷公园周边,以容纳多名艺术家,让其自我创作的工房为主,同时附以教室,图书室,大讲堂,美术馆等,以艺术为主题的综合设施。

CHATEAU D'ART, 丹下健三, 1938

CHATEAU D'ART, 丹下健三, 1938
丹下的这个荣获了东京大学毕业设计最高奖项ー"辰野賞"的作品里,无论是简练而规整的总体排布,构成总体动线的架空底部,功能分离的体块无不显露着那个现代主义鼎盛期对于建筑合理性的种种追求。

CHATEAU D'ART, 丹下健三, 1938

CHATEAU D'ART, 丹下健三, 1938

CHATEAU D'ART, 丹下健三, 1938

CHATEAU D'ART, 丹下健三, 1938
而且从各个细节中,依稀能观察出诸多从Le Corbusier学习而来的部分,包括类似于United Nation大楼中横跨过道的底层架空部,Soviet Palace竞赛案的梯形会议场平面与楼间位置,还有Swiss Pavilion的弧线砖墙与窗格划分。

Soviet Palace, Le Corbusier, 1931

Swiss Pavilion, Le Corbusier, 1930
//

作为跨度从现代主义到后现代主义的建筑师磯崎新,几乎是日本后现代的开创者地位的角色。
受曾远渡上海读书的父亲的影响,磯崎对中国一直保持着非常深刻的了解与执着的兴趣。在就读于东京大学建筑学科期间,师从于当时已是日本建筑界第一把交椅的丹下健三。战后复兴,伴随着佐藤荣作内阁前奥运会后世博会的高度经济增长期,丹下率领的新陈代谢派掀起的革新之风席卷了整个建筑界,现代主义瓦解之势暗流涌动。
世博会中,那新陈代谢派的集大成之作们早已是留名青史,磯崎新也以控制论为基础完成令时人震惊的广场机器人祭祀方案,而他却对新陈代谢派保持了始终的距离。磯崎新曾在书中说:
“新陈代谢派赋予建筑过多的社会意涵,过于理想,注定不会走远” 。
然而也确如历史所证,新陈代谢派作品核心思想的脊轴模块的更新几乎从未实现,而后也确是磯崎新的建筑的解体(建築の解体)与手法主义(マニエリスム)大有摧枯拉朽般,昭示着现代主义的瓦解,煽动起整个藻饰而艳丽的后现代。磯崎新所处的正是面对现代主义合理性的反思,与时代交际新建筑潮流彼此争相涌现的时代。

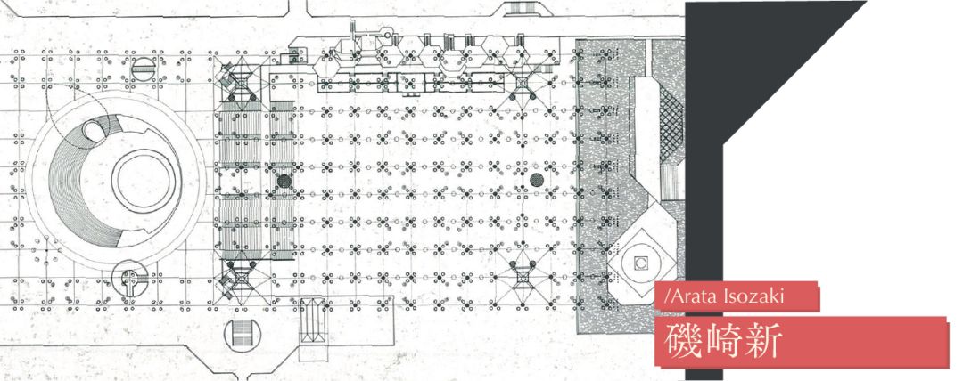
地方都市の文化中心, 磯崎新, 1954
地方都市の文化中心 / 地方城市的文化中心
描述:
九州东部的文化行政中心在经济高度增长过程中,人口不断增加。以开发工业都市为目标,连接东部重工业地区,与西部别府。预计15-20万都市人口中,中心部约7万人口居住的高层楼群与周边的其余人口的低层楼群区隔而建。
中心部以广场为中心,连接四周道路,建筑群为市政府,集会堂,事务所,图书馆,餐厅等多功能的集中开发项目。

地方都市の文化中心, 磯崎新, 1954

地方都市の文化中心, 磯崎新, 1954

地方都市の文化中心, 磯崎新, 1954
大概十分迥异与磯崎新自己实践作品时的深涩与激进,毕业设计时期对于建筑的思考仍旧维持在最为核心的现代主义的条理之下。那些公共设施中架空的底部,环绕中庭的四周动线划分,房顶波浪线的样式处理也基本表现了早期日本都市开发中市政府建筑群建设的典型样态。

地方都市の文化中心, 磯崎新, 1954

地方都市の文化中心, 磯崎新, 1954

地方都市の文化中心, 磯崎新, 1954
可能是现代主义中保持着对于早期大师形式的一致是学习阶段的一种常规方式,磯崎作品中种种部分依旧透露着浓厚的早期Le Corbusier与Mies van der Rohe的各类形式。市政府设计中与Housing Unit Strasbourg类似的立面的窗格划分,波浪线的屋顶是Corbusier后期住宅最常使用的意象。而美术馆的钢桁架下的开放空间则与Mies的New National Gallery有着非常直接的近似,却比1968年才开馆的后者早了十数年。

Housing Unit Strasburg, Le Corbusier, 1940s

Villa Chimanbhai, Le Corbusier, 1951

Drawing of New National Gallery, Mies van der Rohe, 1968
//

隈研吾在70年代末从东京大学毕业那时,正值磯崎新煽动起的野武士:安藤忠雄、伊东丰雄,石山修武等等巨匠们冉冉升起,日本后现代最高潮的前夜。
同时的,伴随着两次石油危机后泡沫经济的高腾,这70-80年代也正是日本现代艺术的最高峰,无论是艺术中的物派,摄影中的Provoke,舞蹈中的暗黑舞踏,戏剧中的地下四大天王,还是建筑中的后现代,都将那个时代带入了极度的燥热,深涩却又瑰丽。隈工毕业后早期的代表作M2,几乎让他一夜间置于后现代潮流的风口浪尖。那几乎巨大到突兀的多立克符号,满满地包含了对后现代潮流走向装饰的调侃与讽刺。隈工在新建筑杂志的文章中曾直述:
“后现代不过是早应被时代淘汰的装饰”
如此也就不能想象,在学生时期与后现代形式的爱恨纠葛。

House of Meditation, 隈研吾, 1977
House of Meditation / 冥想之家
描述:(原文直译)
集合住宅,
位处东京上石神井的住宅区之中,
北面而入,路经从林,
由门厅穿过,
回廊中房间纵列密布,
庭中散置食堂,厅室,钟塔,静思湖...
中世纪修道院的平面排布,
重溯宗教式的静谧与沉思,
在一片平和与安宁之中,
散步,阅读,交谈,聆听...
这里有足够的时间,
让住民,找回属于自己的冥想。

House of Meditation, 隈研吾, 1977

House of Meditation, 隈研吾, 1977

House of Meditation, 隈研吾, 1977
前前后后日本大概都没有隈研吾这般创作手法如此具有转折性的建筑师了,比起他后期提倡的负建筑中消解建筑的概念,毕设中的浓烈的后现代形式和之后的M2都已经展现出隈工对后现代的执念。
在以中世纪修道院为原型的周廊相围的中庭里,是交置错落的建筑群,用不同角度的错位破坏原本集中式建筑在方向与排布上的统合。于是虽然集居在同一建筑之中,个人生活则从角度的错落中解放出来,加之一系列刻意安排的动线与视线为群居中的个人营造更为充满丰富的空间体验。

House of Meditation, 隈研吾, 1977

House of Meditation, 隈研吾, 1977
然而依旧是,除了处处散落的后现代语汇,隈研吾作品中最为直接的便是平面规划上与Louis Kahn的The Dominican Motherhouse的相似。其次是轴测图中表现的集中式建筑,核心与外立面搭配的双层通透结构,与求心式的平面划分也有颇受Kahn影响的成分。

The Dominican Motherhouse, Louis Kahn, 1968

Philips Exeter Library, Louis Kahn, 1965
//

90年代初,从东京大学建筑学科本科毕业的藤本壮介,上学时正处槇文彦,原广司,藤森照信等一众最前沿的建筑师坐镇,是东大史上教师阵容的最黄金年代。然而也正是从这个时代开始,泡沫经济破碎,滑入不景气经济的后数十年,日本也告别了浓烈的后现代风格转向现在的轻白细透的自然风格,而藤本正是这后者的代表建筑师。
藤本壮介在各类访谈中不断谈及自己对于物理与天文学的热忱,坦言曾经一度想并入物理系。在后期实践中,他也始终对自己粒子堆积的建筑形态持以物理学背景的说明。然而对比实践时期的独特的轻盈与通透,学生时期的藤本明显处在摸索的的尝试时期。

Urban Housing, 藤本壮介, 1994
Urban Housing (Ginza dori ave, Project) / 都市住宅
描述:
在银座街道建造一个底部架空的包围式集合住宅,中间部分的广场与外部连接,架空底部让各类移动商贩入驻,形成环形商店街。地面与最上部连接部分设置走廊坡道,坡道呈折线状,与四周环境呼应,呈现独特不同的空间形态。最上部的两层住户的平面部分为适应周围走廊采取不同的平面形式,同时适应不同的家庭类型。

Urban Housing, 藤本壮介, 1994

Urban Housing, 藤本壮介, 1994

Urban Housing, 藤本壮介, 1994
在日本,伴随着战后复兴的人口增长的集合住宅,长期以来是一个已经积累许久,有着诸多经验与学说的建筑类型。藤本壮介这个作品里,以围合方式的划分领域,并用走廊坡道串接整体,也是早期山本理现在集合住宅(如:熊本县营保田窪第一团地)中的常用操作。为同走廊相合,而微调的平面排布也与藤本作品之后才竣工的妹岛和世的岐阜县营集合住宅有着颇为近似的地方。

岐阜県营ハイタウン北方, 妹島和世, 1998

「閾」の概念, 山本理顕
//
作者:
何竞飞 / 东京大学学士,耶鲁大学硕士
点击阅读原文或者下方小程序
在线购买造么工作室原创好物
推荐阅读
点击下方图片即可阅读
